Blidö 40-115

sq

115 m2

bed

5 sovrum

wc-toilet

2 badrum

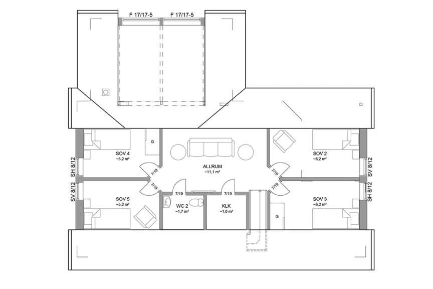
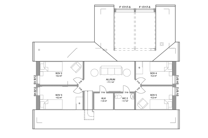
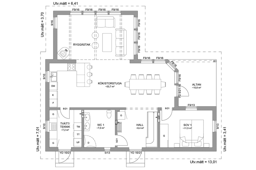
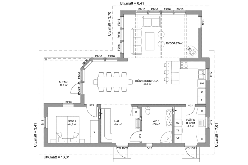
Lofthus i vinkel med hel loftvåning och plats för många. Ett stort sovrum och badrum på nedre plan, flera sovrum och WC på loftet. Socialt kök och utrymme för ett stort matbord gör att detta hus lämpar sig för stora sällskap. Ryggåstak i vinkeln ger rymd och vackert ljusinsläpp från de stora fönsterpartierna.

Pris för husbyggsats från 1 431 100 kr.

Vill ni få en personlig kontakt och anpassad offert? Berätta mer om era byggplaner så hör vi av oss!

Begär en personlig offert

Planlösning

Vill ni göra ändringar i planlösningen? Vårt byggsystem är flexibelt och vi diskuterar gärna olika sorters anpassningar med er. Hör av er och berätta om hur ni vill anpassa huset!

Anpassa hus Ladda ner ritningar

Att bygga Hudikhus - steg för steg

01. Kalkyl och offert

För att få en snabb uppfattning om vad det kostar att bygga ett av våra hus, begär en offert så gör vi en produktionskalkyl. Vi vill veta mer om era behov och önskemål så att vi kan göra en kalkyl och offert utifrån era specifika förutsättningar. Naturligtvis kostnadsfritt!

Läs mer

02. Tomtbesök

I nästa steg vill vi gärna besöka platsen där det ska byggas, för att skaffa oss en ännu bättre förståelse för förhållandena på plats, och bättre kunna hjälpa er att förverkliga er husdröm. Det ger oss också bättre möjligheter att diskutera lämpliga anpassningar av huset med er.

Läs mer

03. Köpeavtal

Baserat på vår tidigare offert tar vi fram ett köpeavtal. Det allra vanligaste är att dessa signeras digitalt med BankID. Köpeavtalet innebär att vi kan gå vidare och påbörja vårt ritarbete. Avtalet är villkorat till att ni får bygglov (och eventuell strandskyddsdispens), så ni är fria att frånträda avtalet utan kostnad om ni inte får tillåtelse att bygga.

Läs mer

04. Avtalsritning

Första steget i vårt ritarbete är att ta fram avtalsritningar. Dessa ska bekräfta avtalet och utgör sedan en grund för en spårbar följd av ändringar, som alltså kan göras under resans gång.

Läs mer

05. Bygglovsansökan

Vi hjälper er med ritningar för att söka bygglov. Eventuella ansökningar om rivningslov, strandskyddsdispens eller marklov hanteras samtidigt med bygglovet.

Läs mer

06. Bygglov klart!

Hur länge det tar att få bygglov varierar mellan olika kommuner och över tid – vanligtvis handlar det om åtta till tio veckor. Under tiden kan ni börja titta på detaljer i invändiga inredningsval som kök och badrum, och vi påbörjar upphandling av en byggentreprenör. Fyra veckor efter beslut har bygglovet vunnit laga kraft.

Läs mer

07. Beställning av entreprenad och hus

När bygglovet har vunnit laga kraft går vi vidare med att handla upp en byggentreprenör som kan ta ansvar till nyckelfärdigt hus om ni vill det, eller till exempel göra huset utvändigt klart om ni själva vill hålla i bygget. Ni skriver avtal direkt med byggentreprenören, och gör en tillverkningsbeställning av huset från oss. Vi kommer då också överens om leveransvecka.

Läs mer

08. Tekniskt samråd och startbesked

I diskussion med oss bokar ni in ett lämpligt datum för tekniskt samråd där ni, er byggentreprenör, kommunen och kontrollansvarig deltar. Startbesked utfärdas vanligtvis i sittande möte, och efter det kan vi fastställa leveransvecka.

Läs mer

09. Produktion av husbyggsats, och grundläggning

Medan husbyggsatsen produceras på fabrik kan markarbeten, eventuell rivning och grundläggning påbörjas. Under denna tid kan ni göra klart era val av inredningsmaterial i en rumsbeskrivning till er byggentreprenör.

Läs mer

10. Husleverans

Dagen när ert hus levereras är ett speciellt tillfälle. Den utvändiga monteringen av huset går snabbt i början, så ni kommer att kunna se stora framsteg under de första dagarna av husmontage. Därefter tar det invändiga, mer tidskrävande arbetet vid.

Läs mer

11. Husbyggnation

Ni har direktkontakt med er byggentreprenör och kontrollansvarige under byggets gång. Vår byggsupport finns tillgänglig på telefon om det uppstår frågor under pågående bygge.

Läs mer

12. Slutbesiktning och slutbesked

Huset slutbesiktigas av en opartisk och självständig besiktningsman och ett slutsamråd hålls med kommunen, som utfärdar slutbesked innan det är fritt fram att flytta in i ert nya hus!

Läs mer

Är ni redo att förverkliga er husdröm?

Ert drömprojekt väntar. Ta nästa steg och kontakta vårt team för personlig kontakt och anpassad offert och kalkyl.

Kontakta oss