Planritningar fritidshus 60-90 kvm

Är ni ute efter att bygga ett fritidshus på ca 70 kvm? Kanske ni är begränsade av detaljplanebestämmelser som anger maximal byggyta, eller befintligt hus inom strandskyddat område?

Utforska planritningar av våra husmodeller mellan 60 och 90 kvadratmeters byggyta nedan. Hitta er favorit, så hjälper vi er att anpassa planlösningen till er tomt och rådande bestämmelser!

30 m2
< 60 m2
60-90 m2
90-120 m2
>120 m2
Enplanshus
Lofthus
Alla filter
Hus
Planritning
Visar 139 hus

Varför välja ett fritidshus på 70 kvm?

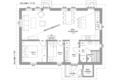
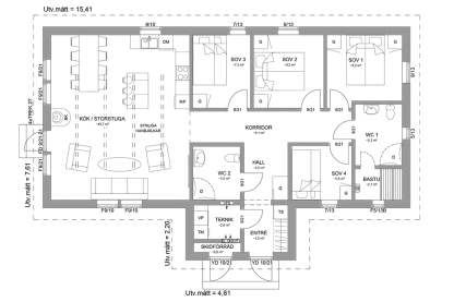
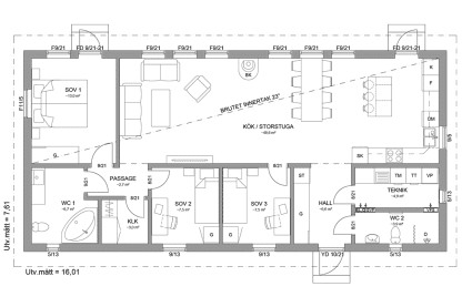
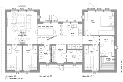
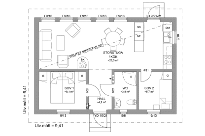
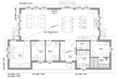
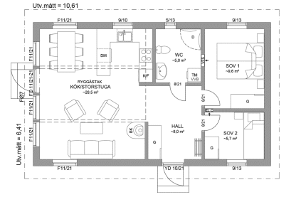
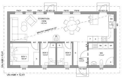
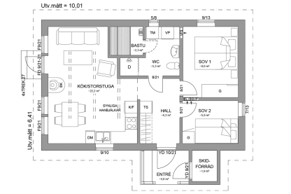
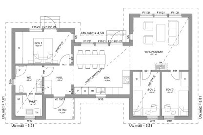
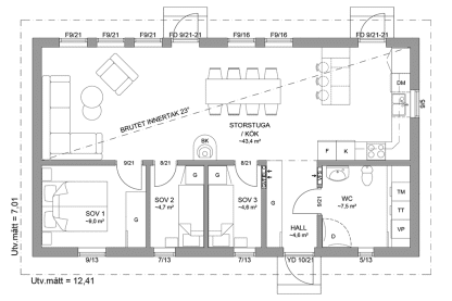
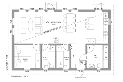
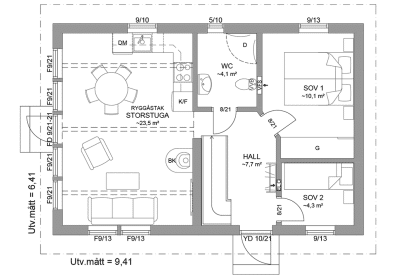
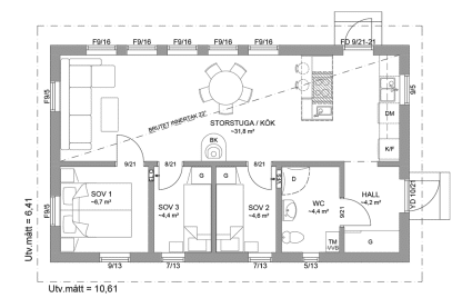
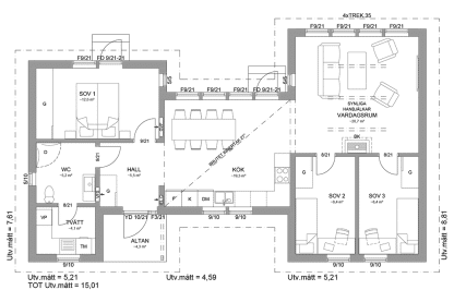
På 70 kvadratmeter kan man räkna med att få in alla nödvändiga funktioner i ett gästhus eller ett kompakt fritidshus – två eller tre sovrum, kök och vardagsrum, och WC med dusch. Med några kvadratmeter över 70 kvadratmeter kan man få in ett tredje sovrum i ett enplanshus, som exempelvis i husmodellen Alster 23-72.

Om ni ska bygga i ett detaljplanerat område där byggrätten tillåter max 70 kvm, så kan det vara möjligt att bygga någon eller några kvadratmeter mer med en mindre avvikelse från detaljplanen. Läs mer om det i vår artikel om detaljplaner och byggrätt!

Vi har en mängd olika modeller av fritidshus i storlek omkring 70 kvadratmeter att utgå från. De erbjuder samtliga:

  • Väl genomtänkta planlösningar för fritidshus omkring 70 kvm.
  • Närmast oändliga möjligheter att anpassa huset efter tomt och familj.
  • Både klassiska och moderna uttryck.

Läs vad våra kunder tycker om sina husprojekt i kundberättelserna. Där får du insikt i hur andra har förverkligat sina drömmar med hjälp av Hudikhus.


Få inspiration till ert fritidshus på 70 kvm

Behöver ni idéer för ert nya fritidshus? På vår sida för inspiration hittar du ett omfattande bildgalleri med tidigare projekt, som inkluderar fritidshus i storlek omkring 70 kvadratmeter.

Ta del av andra kunders idéer och lösningar som kan hjälpa er att hitta rätt stil och funktion för ert hus.

Att bygga Hudikhus – steg för steg

01. Kalkyl och offert

För att få en snabb uppfattning om vad det kostar att bygga ett av våra hus, begär en offert så gör vi en produktionskalkyl. Vi vill veta mer om era behov och önskemål så att vi kan göra en kalkyl och offert utifrån era specifika förutsättningar. Naturligtvis kostnadsfritt!

Läs mer

02. Tomtbesök

I nästa steg vill vi gärna besöka platsen där det ska byggas, för att skaffa oss en ännu bättre förståelse för förhållandena på plats, och bättre kunna hjälpa er att förverkliga er husdröm. Det ger oss också bättre möjligheter att diskutera lämpliga anpassningar av huset med er.

Läs mer

03. Köpeavtal

Baserat på vår tidigare offert tar vi fram ett köpeavtal. Det allra vanligaste är att dessa signeras digitalt med BankID. Köpeavtalet innebär att vi kan gå vidare och påbörja vårt ritarbete. Avtalet är villkorat till att ni får bygglov (och eventuell strandskyddsdispens), så ni är fria att frånträda avtalet utan kostnad om ni inte får tillåtelse att bygga.

Läs mer

04. Avtalsritning

Första steget i vårt ritarbete är att ta fram avtalsritningar. Dessa ska bekräfta avtalet och utgör sedan en grund för en spårbar följd av ändringar, som alltså kan göras under resans gång.

Läs mer

05. Bygglovsansökan

Vi hjälper er med ritningar för att söka bygglov. Eventuella ansökningar om rivningslov, strandskyddsdispens eller marklov hanteras samtidigt med bygglovet.

Läs mer

06. Bygglov klart!

Hur länge det tar att få bygglov varierar mellan olika kommuner och över tid – vanligtvis handlar det om åtta till tio veckor. Under tiden kan ni börja titta på detaljer i invändiga inredningsval som kök och badrum, och vi påbörjar upphandling av en byggentreprenör. Fyra veckor efter beslut har bygglovet vunnit laga kraft.

Läs mer

07. Beställning av entreprenad och hus

När bygglovet har vunnit laga kraft går vi vidare med att handla upp en byggentreprenör som kan ta ansvar till nyckelfärdigt hus om ni vill det, eller till exempel göra huset utvändigt klart om ni själva vill hålla i bygget. Ni skriver avtal direkt med byggentreprenören, och gör en tillverkningsbeställning av huset från oss. Vi kommer då också överens om leveransvecka.

Läs mer

08. Tekniskt samråd och startbesked

I diskussion med oss bokar ni in ett lämpligt datum för tekniskt samråd där ni, er byggentreprenör, kommunen och kontrollansvarig deltar. Startbesked utfärdas vanligtvis i sittande möte, och efter det kan vi fastställa leveransvecka.

Läs mer

09. Produktion av husbyggsats, och grundläggning

Medan husbyggsatsen produceras på fabrik kan markarbeten, eventuell rivning och grundläggning påbörjas. Under denna tid kan ni göra klart era val av inredningsmaterial i en rumsbeskrivning till er byggentreprenör.

Läs mer

10. Husleverans

Dagen när ert hus levereras är ett speciellt tillfälle. Den utvändiga monteringen av huset går snabbt i början, så ni kommer att kunna se stora framsteg under de första dagarna av husmontage. Därefter tar det invändiga, mer tidskrävande arbetet vid.

Läs mer

11. Husbyggnation

Ni har direktkontakt med er byggentreprenör och kontrollansvarige under byggets gång. Vår byggsupport finns tillgänglig på telefon om det uppstår frågor under pågående bygge.

Läs mer

12. Slutbesiktning och slutbesked

Huset slutbesiktigas av en opartisk och självständig besiktningsman och ett slutsamråd hålls med kommunen, som utfärdar slutbesked innan det är fritt fram att flytta in i ert nya hus!

Läs mer

Vanliga frågor om fritidshus 70 kvm

Kan jag anpassa planlösningen i ett fritidshus på 70 kvm? nav-arrow-down

Absolut! Vi är vana vid att anpassa varje hus efter tomt och familj, och diskuterar gärna alla era behov och tankar om anpassningar. Läs mer om att anpassa ert Hudikhus i vår artikel om att ändra planlösningen.

Har ni visningshus för nyckelfärdiga fritidshus? nav-arrow-down

Ja, på visningshusområdet Nybygget vid Arlanda och Husknuten i Västra Frölunda kan man besöka flera av våra husmodeller i verkligheten. Välkommen under ordinarie öppettider, eller hör av er för att boka ett besök när det passar er.

Vad kostar ett 70 kvm fritidshus? nav-arrow-down

Kostnaden kommer att variera med var det ska byggas, och till viss del vilka val man gör. Begär en offert eller kontakta oss för att få en produktionskalkyl på en eller flera av våra husmodeller!

Vad är bästa sättet att värma upp ett fritidshus? nav-arrow-down

Det finns inget enkelt svar på den frågan. Det beror mest på hur huset ska användas, och var det byggs. Många av våra kunder föredrar bekvämligheten med golvvärme i en betongplatta som värms av en frånluftsvärmepump. Vid mer begränsat användande eller mindre hus kan det vara ett bättre alternativ med en luft-/luftvärmepump.

Läs mer i vår artikel om hur man ska tänka kring uppvärmning av fritidshus.

Hur lång tid tar det att bygga ett fritidshus på 70 kvm? nav-arrow-down

Från första avtal till att huset är färdigt att flytta in brukar det normalt ta mellan 10 och 14 månader. Det kan gå snabbare eller ta längre tid, beroende på bland annat tillståndsprocesser för bygglov och eventuellt strandskydd, och byggentreprenörers tillgänglighet. Monteringen av huset går väldigt fort, och efter en till två dagars arbete kan husets klimatskal vara tätt, och efter mindre än en vecka kan det vara utvändigt klart. Därefter tar det mer tidskrävande invändiga arbetet vid. I normalfallet kan huset vara inflyttningsklart 2-3 månader efter leverans.

Går det att leverera hus till öar? nav-arrow-down

Det går absolut att leverera våra hus till öar. Vårt byggsystem med småblock är särskilt väl lämpat för att levereras till svårtillgängliga platser. Vi har varit med och förverkligat många husdrömmar på öar längs i princip hela Sveriges kustband och i insjöar.

I vårt rikstäckande nätverk av byggentreprenörer finns många med vana av att bygga i skärgårdsmiljö och hantera den nödvändiga logistiken. Kontakta oss för att diskutera vidare!

Är ni redo att förverkliga er husdröm?

Ert drömprojekt väntar. Ta nästa steg och kontakta vårt team för personlig kontakt och anpassad offert och kalkyl.

Kontakta oss