Sonfjället är en husserie från Hudikhus med genuina fjällstugor i form av moderna lofthus, utformade för stora sällskap och generösa gemensamma ytor. Serien kännetecknas av hög invändig takhöjd, upp mot fem meter, och stora glaspartier som skapar rymd och stort ljusinsläpp.
Sonfjället finns som lofthus med 35 graders taklutning och boendeytor från 77 till 101 kvadratmeter.
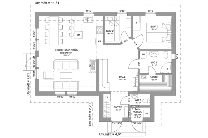
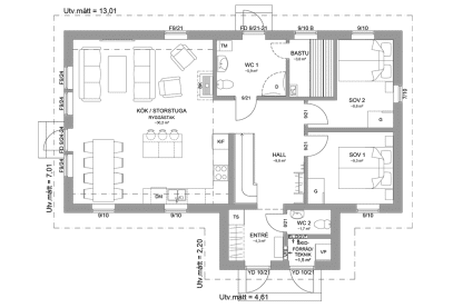
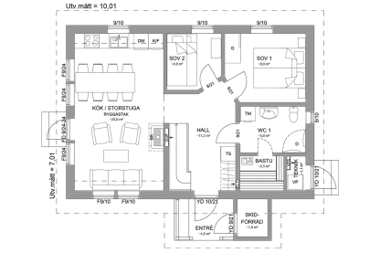
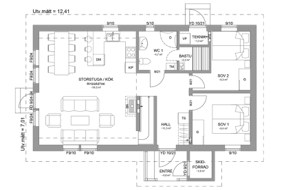
Kök och storstuga är samlade under ett ryggåstak med mäktig takhöjd, vilket ger gott om plats för umgänge och social samvaro. Planlösningen är yteffektiv och anpassad för att rymma många sovplatser på en kompakt boendeyta.
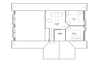
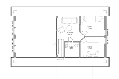
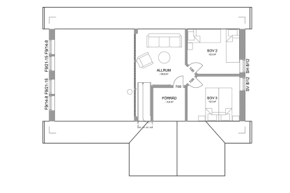
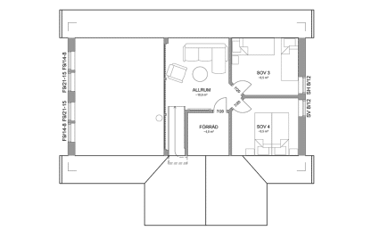
Loftet kan disponeras med exempelvis fler sovrum, förråd och/eller WC. Med tillval av takkupa kan även plats för extra dusch skapas. Sammantaget är Sonfjället utformat för större familjer eller sällskap som söker ett funktionellt fjällhus med tydlig rymd och klassisk fjällstugekänsla som fungerar lika bra på sommaren som på vintern.