Alster
Alster är en serie moderna ladhus. Den raka, långsmala huskroppen och de stora kvadratiska, foderlösa glaspartierna ger dessa ladhus sitt moderna uttryck.
Med sin stilrena spårpanel och midjelösa gavlar kommer Alster med ett både modernt och exklusivt yttre. Fritidshus, gäststuga eller för permanent boende - möjligheterna är många med dessa flexibla ladhus.
< 60 m2
60-90 m2
90-120 m2
>120 m2
Enplanshus
Lofthus
Alla filter
Hus
Planritning
Visar 14 hus
Alster 23-46
46 m2
2 sovrum
1 badrum
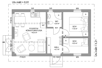
Alster 23-64
64 m2
2 sovrum
1 badrum
Alster 35-68 FHV
68 m2
3 sovrum
1 badrum
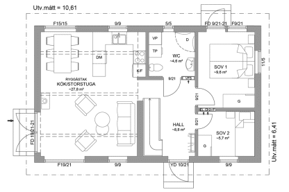
Alster 23-72
72 m2
3 sovrum
1 badrum
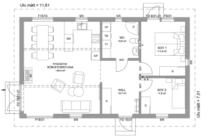
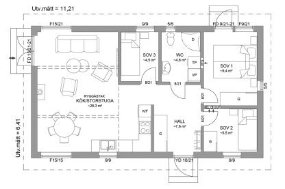
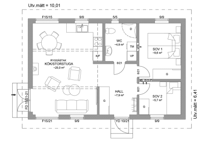
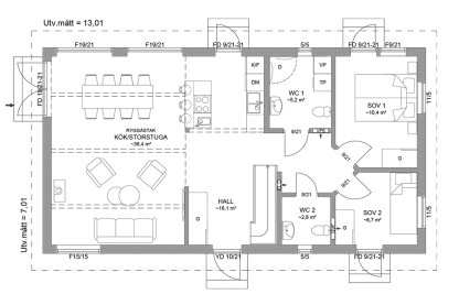
Alster 23-83
83 m2
2 sovrum
1 badrum
Alster 23-90
90 m2
3 sovrum
1 badrum
Alster 35-91 FHV
91 m2
4 sovrum
2 badrum
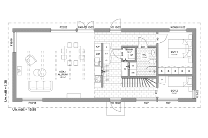
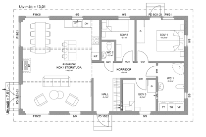
Alster 23-99
99 m2
3 sovrum
2 badrum
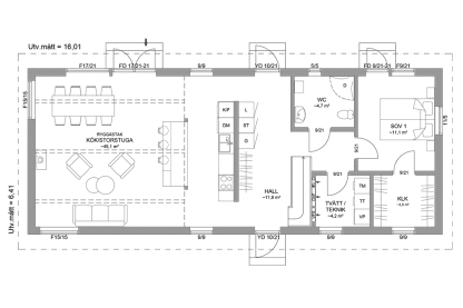
Alster 45-102 FHV
102 m2
3 sovrum
1 badrum
Alster 35-103 FHV
103 m2
2 sovrum
1 badrum
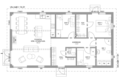
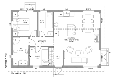
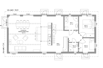
Alster 23-108
108 m2
3 sovrum
2 badrum
Alster 35-112 FHV
112 m2
4 sovrum
2 badrum
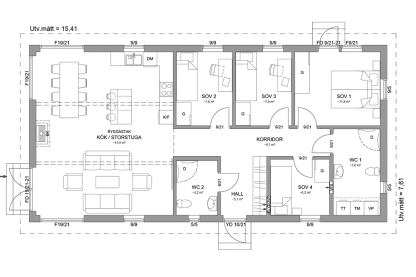
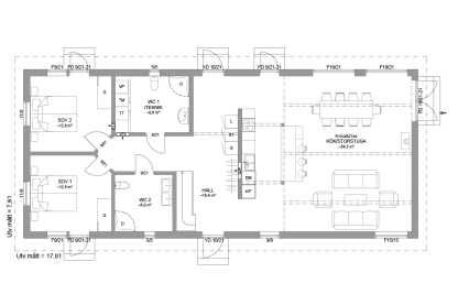
Alster 23-117
117 m2
4 sovrum
2 badrum
Alster 35-136 FHV
136 m2
4 sovrum
2 badrum